Technical Corner
High-performance fabrication detail for unique application of perforated fiber cement panels. Swisspearl's air-cured fiber cement panels offer the highest quality and performance for custom fabrication applications.
Project Name: Domino Site E
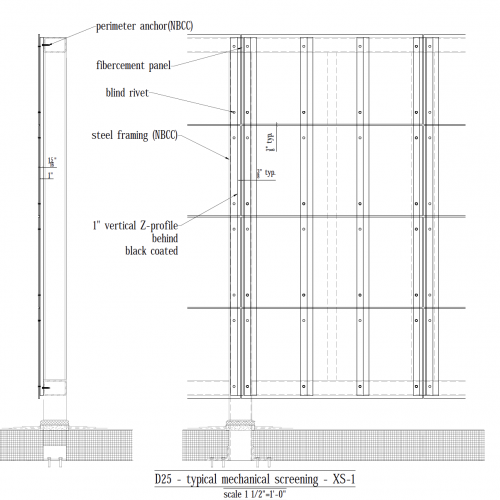
An efficient and economical approach for detailing a fiber cement HVAC screen to beautify the roofline elevation in commercial applications.
Project Name: Rhode Island College - Craig Lee Hall Renovation
System Type: ECO Cladding Alpha Vz.10 System
An installation-efficient solution for deep window conditions when detailing drained and back-ventilated large-format fiber cement rainscreen panels.
Project Name: West End Square 50 - Washington, DC
System Type: ECO Cladding Alpha Hci.10





